機能詳細
点検管理の匠は、各種点検項目の作成、入力に加えて報告書などのアウトプット機能を持っています。機能について一部をご紹介いたします。
タブレットPCでの入力
点検項目がエクスポートされる際、事前に点検順路を設定できるので、順番に点検を入力することが可能です。
一方随時入力する場合には検索機能も利用できます。タブレットPCにカメラが搭載されていればQRコードを読み込むことも可能です。 (WindowsCEもしくはWindowsMobile搭載のPDAを利用することも可能です。)
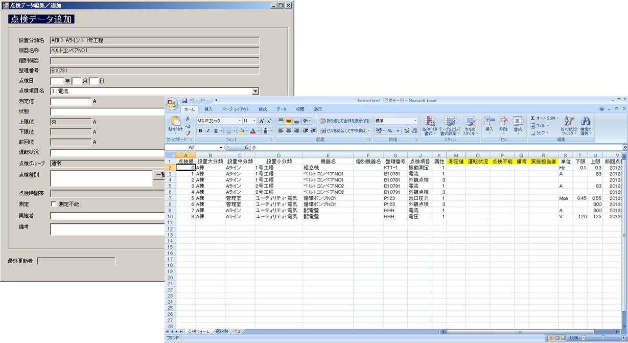
報告書の出力
標準で日々の点検の報告書を印刷できる機能が付いています。
また、オプションでお客様が自由にExcelファイルで報告書を作成し、出力することができます。(ただし、期間の点検データを報告書で一度に出力することはできません)
データの入力・インポート
点検データはタブレットPCからではなく、直接画面上から入力することも可能です。また、Excelフォームを出力し、Excelフォームから点検データを入力することも可能です。
点検項目を、Excelファイルからインポートすることも可能です。
設備管理システムとの連動
点検項目は自由に作成し、それぞれ設備管理の匠(設備管理システム)の機器と結びつけることができます。
点検結果は設備管理の匠(設備管理システム)のメンテナンス履歴に反映できます。
初期状態では点検の異常値のみメンテナンス履歴に反映する設定になっていますが、変更も可能です。
動作環境
| 項 目 | 内 容 |
|---|---|
| 稼動OS | Microsoft社製 Windows7、8、10、11 ※最新のサービスパックをいれてください。 |
| データベース | Microsoft社製 Access形式JETエンジン (Accessのアプリケーションは不要です) |
| メモリ(クライアント) | 512MB以上(OSが動作することが条件) |
| ハードディスク容量 | インストール時1GB以上の空き容量 |
| ディスプレイ | 1024×768ピクセル以上 256色以上 |
| 必要ソフト | Microsoft .NET Framework (2.0以上、マイクロソフトより無償頒布されています。インストールCDに梱包されています) Microsoft ReportViewer (マイクロソフトより無償頒布されています。インストールCDに梱包されています) Microsoft Activesync (マイクロソフトより無償頒布されています。インストールCDに梱包されています。PDA利用時のみ必要です。) |
| タブレットPC | AndroidOS3.2以上 7インチ型タブレット(解像度:1024×600、1280×800) ※OSと解像度が問題なければ、スマートフォン及び上記サイズ以外のタブレット端末でもご利用いただけることがあります。詳しくはご相談下さい。 |
| PDA | WindowsCE5.0、6.0、WindowsMobile5.0、6.0が搭載されている機種 |
| その他 | CDからインストールする場合、インストール時にCDドライブが必要 |












